熱門服務與設施
行李寄放自助洗衣設備自助烘衣設備攜帶式 Wifi 分享器寄物櫃機場接送禁止吸菸無障礙設施電梯需上下樓梯
會員可獲得更多優惠喔!



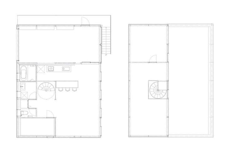
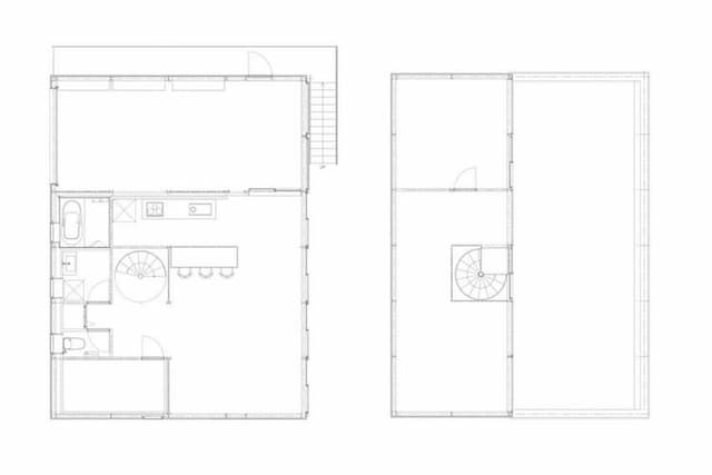
横須賀 Sky Grey|海景/免費停車位 位在 日本 神奈川縣 橫須賀市,附近的景點及地標有 、 等。
各房型住宿的價格費用細節,通常包含:入住日期內的房間使用、房間內的免費設施、公共區域的免費設施,是否含餐或其他服務,依您購買的方案細節為準。
横須賀 Sky Grey|海景/免費停車位 的入住時間為 13:00、退房時間為 11:00,請配合入住/退房時間以享受最佳住宿體驗。
來到 神奈川縣 自駕遊,選擇入住 横須賀 Sky Grey|海景/免費停車位 可先參考旅宿頁面的「服務與設施」、查看「交通服務/設施」項目,了解 横須賀 Sky Grey|海景/免費停車位 是否有提供免費/付費停車場、周邊是否有其他停車場等相關交通服務資訊。若「服務與設施」項目中未顯示,表示未提供此服務。
出國遊玩選擇入住 横須賀 Sky Grey|海景/免費停車位 想確認有沒有公用網路可使用,可先參考本資訊頁面的「服務與設施」、查看「服務與設施」內容項目,了解 横須賀 Sky Grey|海景/免費停車位 是否有提供公共區域WiFi、或公共電腦等網路使用相關服務。若「服務與設施」項目中未顯示,表示未提供此服務。
請依據訂房選擇的房型及方案,確認訂購方案中是否有含早餐的選項、或可確認旅宿是否有附設美食餐廳,實際情況請依服務資訊細節及公告為主。